VILLA 515

VILLA 515

program: Perfume Store / Retail location: The Galleria, Abudhabi, UAE status: Construction year: 2020


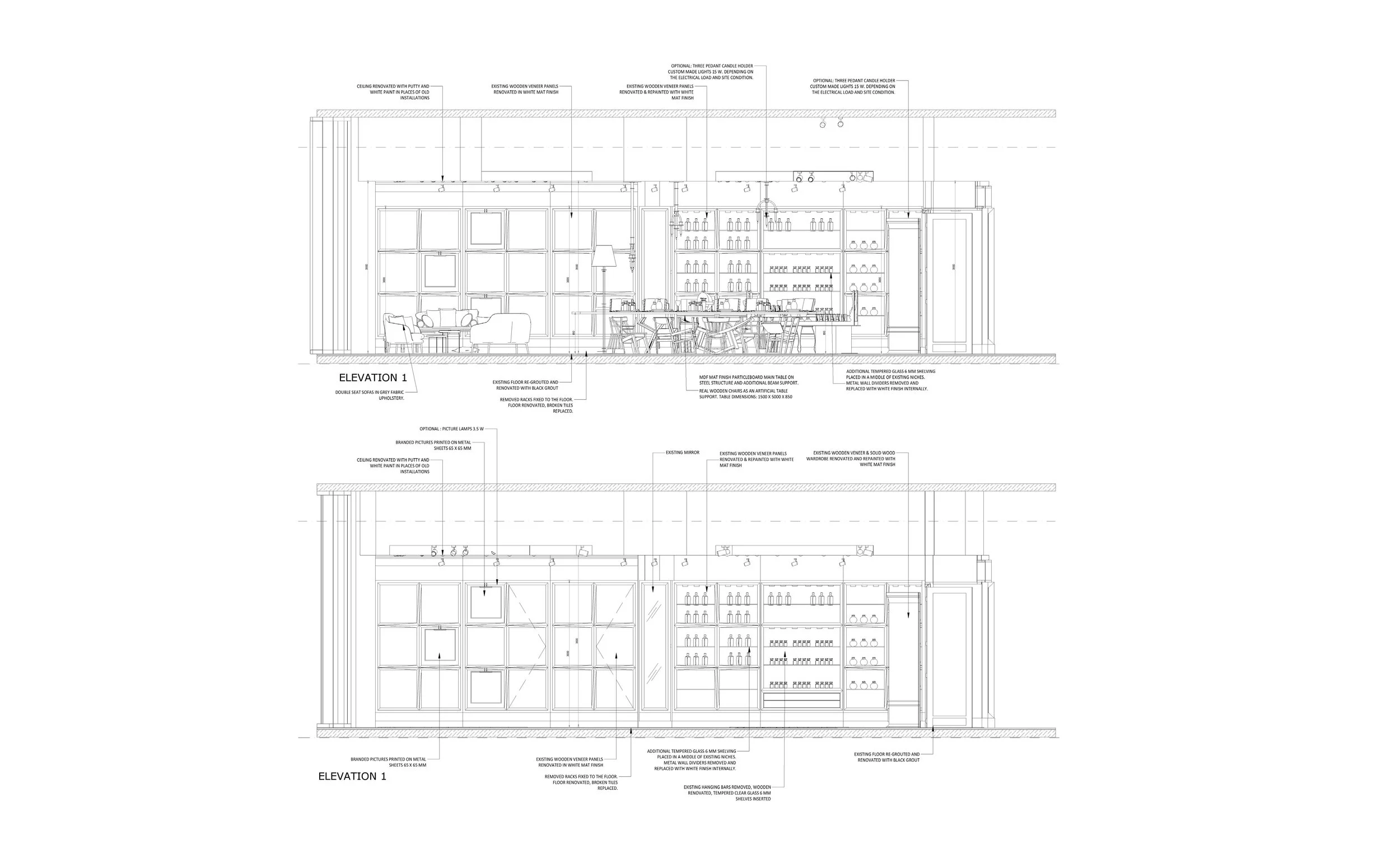
Villa 515, a UAE based fragrance brand is a limited quantity products store dedicated to perfume enthusiasts. The concept store in Abu Dhabi has to showcase the upcoming products or perfumes that is already in testing stage in the lab which will be as well sold in limited quantities prior to full production. The project budget was tight and we have taken this challenge as a potential rather than obstacle.

We had to rethink first and foremost the materials that fits the budget but at the same time looks and feels elegant and clean. For this reason, we’ve reviewed what’s been done in the fashion industry during temporary events such as fashion walk: Refurbishing and generating new items using recycled materials. We looked into client‘s storage consisting of disposable items and joinery from the previous store. At some instances we have deconstructed, and played with existing forms and shapes, in order to create new design elements and characters. The old chairs are now taking the role of legs to hold up the main display table. On the shop front we have stacked these chairs as a vitrine display. Among the items were colorful old somewhat not expensive carpets, which we have repaired and made puzzle pieces cut to break the monotonous feeling of the existing floor. As pop-up concept store, we wanted the design elements to function as a background in order to emphasize more on actual displayed products.

White painted glossy surfaces and refined detailing in combination with a balanced lighting plan subtly highlight the products so all attention will focus on their unique features. The main table displaying perfumes legs is a combination, made with existing vintage style wooden chairs that are dismantled and lacquered in white and assembled to form an artistic piece.

GALLERY

Previous
Previous

Zero Six Office